Modern Gallery
Zgłoś naruszenie...
Wybierz jedną z poniższych opcji.
Ten komentarz dotyczy mnie lub znajomego:
atakuje mnie,
atakuje znajomego.
Komentarz dotyczy czegoś innego:
spam lub oszustwo,
propagowanie nienawiści,
przemoc lub krzywdzące zachowanie,
treść o charakterze erotycznym.
Napisz
PANEL

katarzynakrzysztof

wpisy na blogu

NASZA PELNA WYZWAN DZIALECZKA

Data dodania: 2012-07-27
wyślij wiadomość

Nasza dzialka ma pow. 40a i jest nachylona w kierunku poludniowym. Roznica wysokosci pomiedzy gora dzialki, a dolem to ponad 8m. Mamy wiele pomyslow na jej zagospodarowanie, jednak jeszcze nic konkretnego nie postanowilismy. Jestesmy otwarci na wszelkie propozycje!!!

blog budowlany - mojabudowa.pl

 

blog budowlany - mojabudowa.pl

 

blog budowlany - mojabudowa.pl

ZMIANY W PROJEKCIE

Data dodania: 2012-04-23
wyślij wiadomość

Główna zmiana w projekcie to całkowite podpiwniczenie. Mamy działkę ze spadkiem w kierunku południowym więc wymyśliliśmy aby wyjscie z piwnicy było bezpośrednio na ogród.

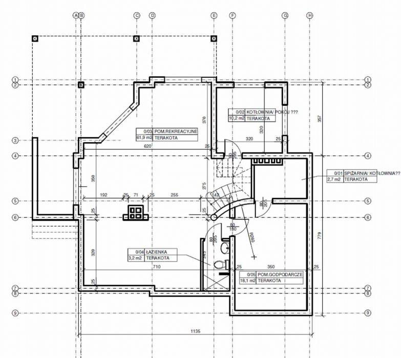
PIWNICA

blog budowlany - mojabudowa.pl

 

Na parterze w miejscu garażu zrobimy dużą jadalnie, powiększyliśmy kuchnię, powiększyliśmy łazienkę by można było wstawić prysznic, poszerzyliśmy drzwi wejściowe, powiększyliśmy salon przesuwając ściane z gabinetu oraz dodaliśmy duży taras.

PARTER

blog budowlany - mojabudowa.pl


Na poddaszu obyło się bez zmian!!!

WITAMY WSZYSTKICH OPAŁKOWICZÓW!

Data dodania: 2012-04-23
wyślij wiadomość

Po przejrzeniu niezliczonej liczby projektów wraz z mężem zdecydowaliśmy, że Opałek 1g (lustrzane odbicie) jest tym wymarzonym. Urzekła nas jego bryła jak również bardzo funkcjonalne rozmieszczenie. Oczywiście wprowadziliśmy kilka zmian by jeszcze bardziej dostosować go do naszych potrzeb. I w ten oto sposób mamy naszego niepowtarzalnego OPAŁKA!!!

katarzynakrzysztof Wyślij wiadomość do autora OBSERWUJ BLOGA
statystyki bloga
Odwiedzin bloga: 2432
Komentarzy: 3
Obserwują: 6
On-line: 9
Wpisów: 8 Galeria zdjęć: 19
Projekt OPAŁEK
BUDYNEK- dom wolno stojący , parterowy z poddaszem z piwnicą
TECHNOLOGIA - murowana
MIEJSCE BUDOWY - Zamość
ETAP BUDOWY - II - Parter
ARCHIWUM WPISÓW
2012 wrzesień
2012 lipiec
2012 kwiecień

Statystyki mojabudowa.pl
Liczba blogów: 68035
Liczba wpisów: 223131
Liczba komentarzy: 903200
Liczba zdjęć: 682435
Liczba osób online: 48
usuń reklamy
Top 100 blogów

sprawdź listę 100 najczęściej odwiedzanych blogów.

sprawdź teraz